Squam Lake Cottage

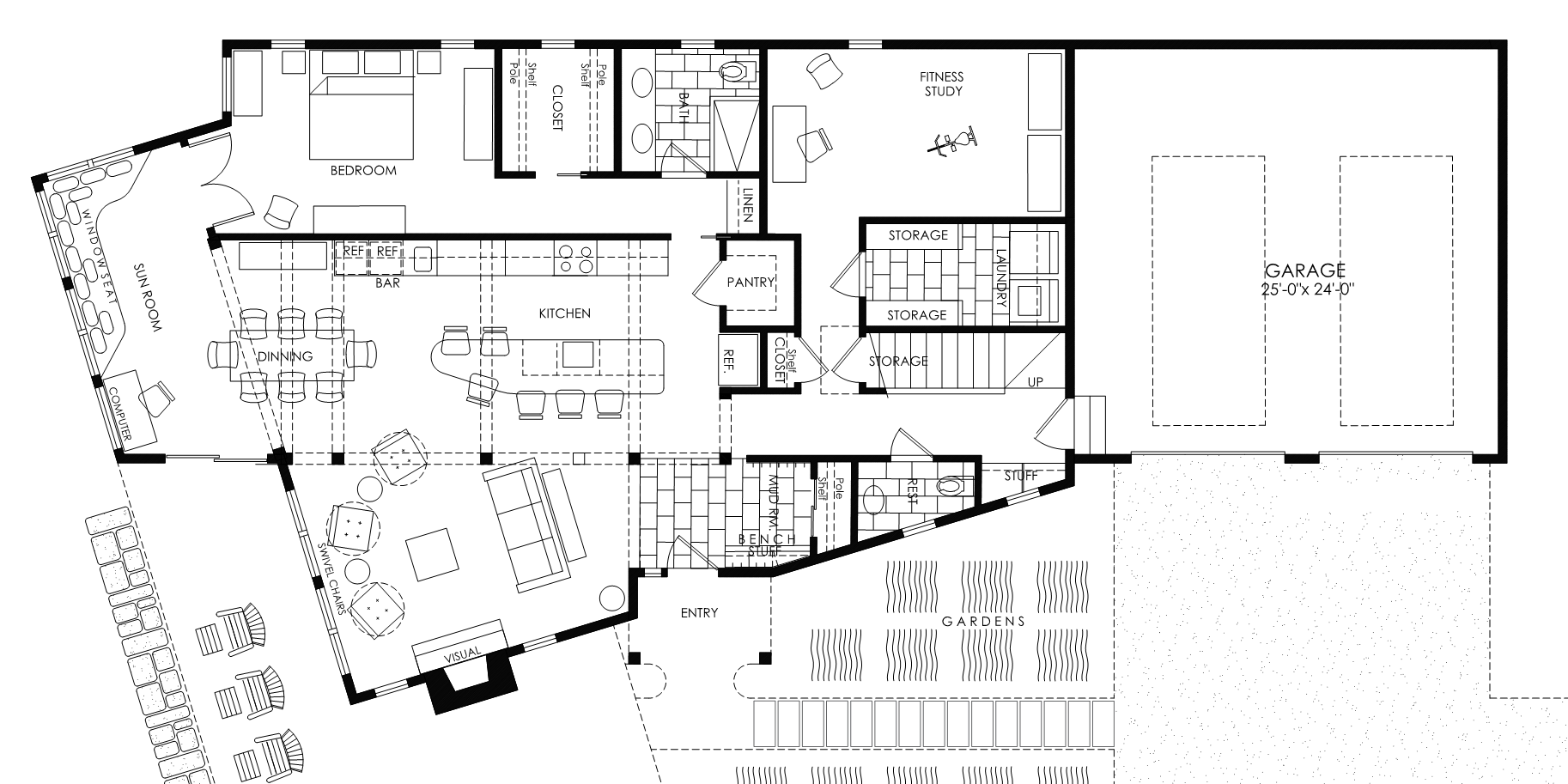
The site came with clear limits—an existing nonconforming structure, a narrow footprint, and strict shoreline and zoning rules. Rather than resist them, the design works with these conditions, using each constraint to shape the home.

Within these boundaries, the architecture finds clarity. The plan is carefully arranged to meet requirements while opening toward what matters most: the wide, reflective lake. Main living spaces line this edge, designed not just for views but for a calm, outward-looking experience.

Facing southwest, the cottage turns toward the sun. Light builds through the day, warming the interiors into the evening. The house settles into this rhythm, in tune with the lake and the changing light.

I N P R O G R E S S

Previous
Previous

Country Revival

Next
Next

Emerson House